Via del Crocefisso
€630000Descrizione
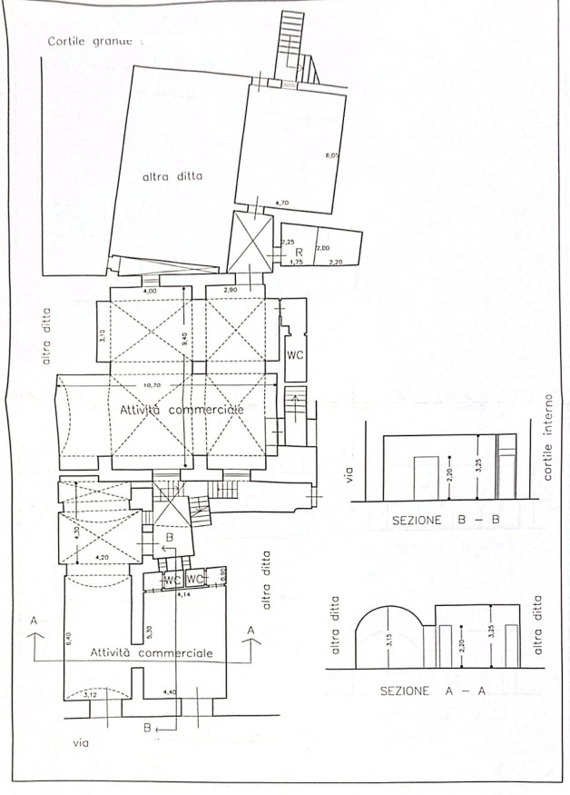
ORTIGIA - Nel pieno centro storico di Ortigia, a pochi passi da Piazza Duomo e dalle principali attrazioni turistiche, si vendono SOLO LE MURA di un ampio locale commerciale di circa 290 mq, situato in una posizione di altissimo passaggio pedonale e grande visibilità.Attualmente il locale è affittato ad una attività di ristorazione con canone annuo di 20.400 euro, con contratto commerciale 6+6 in essere da un anno.
L’immobile si sviluppa su un unico livello e si presenta suddiviso in ambienti ben distribuiti, dal fascino antico, ideali per attività di ristorazione come già in essere, boutique, galleria d’arte o showroom.
Struttura in ottime condizioni interne, con caratteristiche architettoniche tipiche del centro storico (volte in pietra, dettagli originali).
Caratteristiche principali:
Superficie: circa 290 mq commerciali
Posizione: cuore di Ortigia, area pedonale
Ottimo investimento a reddito vista la posizione strategica ed altamente turistica.
Vendita delle sole mura (non attività)
Questa proposta immobiliare risulta essere una valida opportunità unica per chi desidera investire in un immobile di pregio nel centro storico più esclusivo di Siracusa.
€ 630.000 SISTEMACASA Classe Energetica G (175 kWh/mqa)
Siamo a Vostra disposizione per fornirVi maggiori informazioni e per fissare un sopralluogo su questo immobile; potete contattarci al nostro recapito telefonico 06.52.98.725 dal lunedì al venerdì dalle ore 9.00 alle ore 13.00 e dalle 15.30 alle 19.30, mentre il sabato dalle ore 9.00 alle ore 13.00 ; il sabato pomeriggio previo appuntamento telefonico.
Se desiderate potete anche scriverci una mail all’indirizzo [email protected]; sarete ricontattati in breve tempo per fornirVi maggiori informazioni.
Video
Planimetria


