Viale Aldo Ballarin
€179000Descrizione
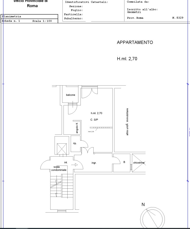
TINTORETTO BALLARIN – e precisamente in Via Aldo Ballarin, in un contesto tranquillo e immerso nel verde, proponiamo in vendita un bilocale, soluzione perfetta sia come abitazione che come investimento a reddito.L’appartamento, in buono stato manutentivo, è situato all’interno di uno stabile dotato di ascensore e privo di barriere architettoniche, ed è composto da:
ingresso, soggiorno, cucinotto, camera da letto, bagno finestrato e piccolo balcone.
Completano la proprietà, inclusi nel prezzo, un comodo posto auto scoperto e una cantina, elementi che aggiungono praticità e valore all’immobile.
La posizione è uno dei veri punti di forza: ben collegata e strategica, consente di raggiungere rapidamente le principali zone di Roma sia con i mezzi pubblici che in auto. Nelle immediate vicinanze si trova Via Cristoforo Colombo, una delle arterie più importanti della città.
L’area è perfettamente servita: collegamenti rapidi con GRA, Via Ardeatina, Via Laurentina e Via Appia, oltre a linee bus che permettono un facile accesso alla Metro B Laurentina.
A pochi minuti si trovano inoltre il centro commerciale “I Granai” ed Euroma2, oltre a supermercati, scuole, parchi, impianti sportivi e tutti i principali servizi.
Ottima opportunità per chi cerca un investimento sicuro in una zona richiesta e ben collegata
€ 179.000 SISTEMACASA 06.52.98.725 Classe Energetica G (175 kWh/mqa)
Siamo a Vostra disposizione per fornirVi maggiori informazioni e per fissare un sopralluogo su questo immobile; potete contattarci al nostro recapito telefonico 06.52.98.725 dal lunedì al venerdì dalle ore 9.00 alle ore 13.00 e dalle 15.30 alle 19.30, mentre il sabato dalle ore 9.00 alle ore 13.00 ; il sabato pomeriggio previo appuntamento telefonico.
Se desiderate potete anche scriverci una mail all’indirizzo [email protected]; sarete ricontattati in breve tempo per fornirVi maggiori informazioni.
Planimetria


